TRAUMHAFTES SEEHAUS IM BURGENLAND – IHR RÜCKZUGSORT INMITTEN DER NATUR ERWARTET SIE! | trovato.immo
20 Fotos

TRAUMHAFTES SEEHAUS IM BURGENLAND – IHR RÜCKZUGSORT INMITTEN DER NATUR ERWARTET SIE!

7100 Neusiedl am See, Am Pier
20 Fotos

Willkommen in Ihrem neuen Traumdomizil! Dieses exklusive Seehaus bietet alles, was Sie sich von einem idyllischen Rückzugsort erhoffen.
Der direkte Zugang zum See macht dieses Haus zu einem unvergleichlichen Erlebnis. Starten Sie Ihren Tag mit einem erfrischenden Sprung ins klare Wasser oder genießen Sie den Sonnenuntergang bei einem Glas Wein am Ufer.

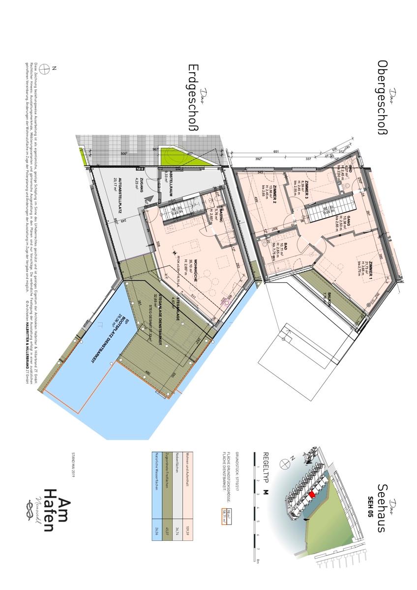
Die Erstbezugs-Immobilie verfügt über folgende Räumlichkeiten:

große, offene Wohnküche mit der Option für einen offenen Kamin im Erdgeschoß
3 Zimmer im Obergeschoß
3 Bäder + 3 Toiletten (OG + EG)
1 Abstell- und Technikraum
großzügige Terrasse, Bootsanlageplatz + Balkon
überdachter Stellplatz mit Garagentor

Diese herrliche Immobilie kann via trovato.immo selbst besichtigt und online angemietet werden. Zudem steht die Möglichkeit eines Mietkaufs von Seiten des Verkäufers zur Verfügung > Kontaktieren Sie uns für weitere Informationen dazu gerne unter ak@trovato.immo.

Eckdaten

Baujahr
HWB (kWh/m²/Jahr)
39,19
HWB Klasse
B
fGEE
0,82
fGEE Klasse
A
Energieausweis gültig bis
2029-05-26

Vertragliches

Bezugsfertig
Ab sofort
Befristung
Unbefristet
Haustiere erlaubt
Ja
Provision
1 BMM zzgl. 20% USt.

Ausstattung

  • Badezimmer
  • Fahrradraum

Großzügige Sonnenterrassen: Entspannen Sie auf den weitläufigen Freiflächen und lassen Sie den Blick über den glitzernden See schweifen. Perfekt für Sonnenbäder, gesellige Abende oder entspannte Stunden in privater Atmosphäre.

Bootsanlegeplatz: Der private Bootsanlegeplatz direkt am Haus ermöglicht Ihnen jederzeit unkomplizierten Zugang zum See. Ideal für Wassersportliebhaber und Bootsbesitzer.

Einzigartige Lage: Mitten im See gelegen, bietet dieses Haus eine atemberaubende Rundum-Aussicht und höchste Privatsphäre. Ein echtes Juwel für Naturfreunde und Ruhesuchende.

Lage

Dieses wunderbare Seehaus befindet sich in einer der schönsten Regionen Österreichs, die für ihre unberührte Natur und hohe Lebensqualität bekannt ist: mitten im UNESCO-Welterbe Neusiedlersee. Zentral und dennoch idyllisch gelegen - mitten im Naturschutzgebiet Neusiedlersee und gleichzeitig nah an Wien, dem Flughafen und Bratislava. Die Region zeichnet sich durch ein mildes, südliches Mikroklima aus. Die einzigartige Landschaft mit ihren weiten Ebenen, idyllischen Weingärten und der außergewöhnlichen Pflanzen- und Tierwelt fasziniert jeden Naturliebhaber. Die unmittelbare Umgebung bietet eine vielfältige kulturelle, kulinarische und sportliche Auswahl sowie hervorragende Erholungsmöglichkeiten.

Sonstiges

Damit Du die Immobilie in deinem gewählten Zeitfenster selbst besichtigen kannst, übermittelt Dir unser Partner EVVA Airkey via SMS einen Link zur App, mit der Du Deinen persönlichen Schlüssel-Code erhältst, um in die Wohnung zu gelangen.

Nachdem Du die Wohnung in Ruhe besichtigt hast, kannst Du diese bei Gefallen jederzeit online anmieten.

Wie funktionierts

So kommst Du zu Deiner Mietwohnung

1. Finden

Gib Deine Kriterien ein und finde aus dem aktuellen Angebot Deine Wunschwohnung.

2. Besichtigen

Such Dir den passenden Termin aus und besichtige 24/7 ohne Makler vor Ort.

3. Mietanbot

Verschicke online Dein Mietanbot inklusive aller erforderlichen Nachweise.

4. Mietvertrag

Mietanbot wurde angenommen? Gratulation! Unterzeichne den Mietvertrag direkt online.